Crayford Road, Brighton

| BN2 4DQ

£475,000

Property Description

A 3 bedroom, 3 reception room END OF TERRACE HOUSE, situated on a POPULAR residential street, offering a fantastic opportunity for buyers looking for a wonderful family home. The property boasts; FLEXIBLE ACCOMMODATION throughout, PRETTY VIEWS over Brighton & a sunny REAR GARDEN that’s perfect for relaxing or entertaining. Located close to local amenities, schools & transport links into the city centre, this location blends convenience with a welcoming community feel. Viewings are highly recommended. Energy Rating: D67 Exclusive to Maslen Estate Agents

  • 3 Bedrooms
  • 3 Reception Rooms
  • Private Rear Garden
  • Pretty Views Over Brighton
  • End of Terrace
  • Popular Location
  • Flexible Accommodation
  • Viewings are Highly Recommended
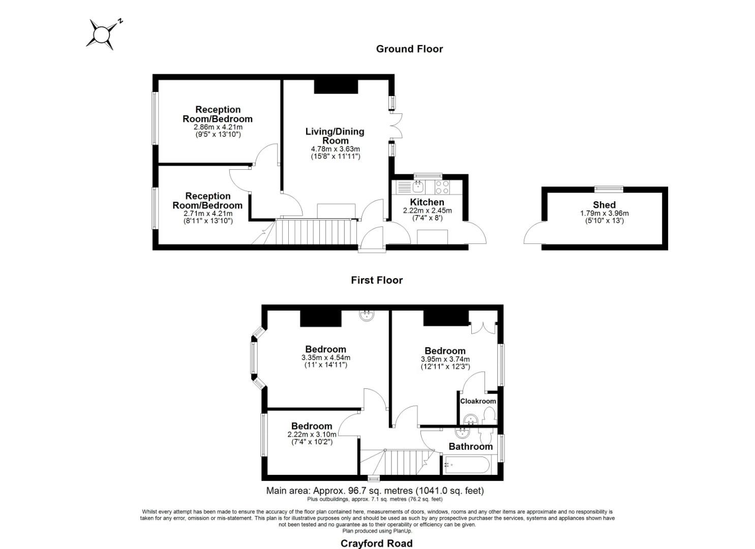
  • Total Approx Floor Area: 96.7 sq.m. (1041.0 sq.ft.)
  • Excluisve to Maslen Estate Agents

Front door to:

Hallway

Doors to Lounge & Kitchen, stairs rising to first floor.

Kitchen

Range of wall & base units with square edged work surfaces over, inset stainless steel single drainer sink unit with mixer tap, space for appliances, wall mounted 'Worcester' boiler, part tiled walls, tiled floor, window to side, door to rear.

Lounge

French doors to rear, radiator, understairs storage cupboard, picture rail, range of wall & base units, door to:

Inner Lobby

Doors to:

Reception Room/Bedroom

Currently used as a bedroom, radiator, window to front.

Reception Room/Bedroom

Currently used as a bedroom, radiator, window to front.

First Floor Landing

Window to side, hatch to loft space, doors to all rooms.

Bedroom

Window to front, radiator.

Bedroom

Bay window to front, radiator, picture rail.

Bedroom

Window to rear, radiator, built in storage cupboard, picture rail, door to:

Cloakroom

WC with push button flush, pedestal wash hand basin with hot & cold taps, laminate flooring, part tiled walls, wall mounted extractor fan.

Bathroom

WC with push button flush, pedestal wash hand basin with mixer tap, panelled bath with mixer tap & further hand held shower attachment, glass shower screen, part tiled walls, tiled floor, window to rear with frosted glass, wall mounted extractor fan.

Outside

Front Garden

Laid to patio, enclosed by brick walling.

Rear Garden

Section laid to patio, lawned borders, brick built shed, enclosed by brick walling & timber fencing.

Total approx floor area

96.7 sq.m. (1041.0 sq.ft.)

Parking zone U

Council tax band C

V1

Watch this property

You must have an account to watch a property

Register for an Account Login to your account

Arrange a viewing

Prefer to talk to us?

We look forward to hearing from you

Mortgage Calculator

Results

Interest only
Repayment

Rate change

Interest only
Repayment

Stamp Duty Calculator

Enter the price of your property

Stamp Duty for this property

Area Guide

Our Lewes Road office serves Lewes Road, Hanover, Queen's Park, Elm Grove and London Road. All are close to Brighton station – just 15 minutes walk in most cases – and not much further from the sea.Close to the town centre, Lewes Road and London Road are both up-and-coming areas in their own rights, with local businesses and amenities starting to rival the more famous Lanes and North Laine.Well served by green spaces, The Level, Queens Park and Preston Park are all within walking distance, and the 5,000 hectare Stanmer Park is just a 10 minute bus ride away.

Read more

Testimonials

  • In what could have been a very stressful situation it has been a pleasure dealing with you and I can’t speak highly enough of the service provided.

    Gill Frost Hove

  • Thanks for all your help and assistance. Very friendly and professional service.

    Lisa Downary Brighton

  • Very professional and friendly. The only estate agents I would trust and recommend.

    Jean Hurley Brighton

  • We were delighted with the service received from all the staff with whom we had contact,

    Dr Crichton Brighton

  • Maslen's were very good at keeping in touch an...

    Penny Ashby Brighton

  • Thank you to all the team at Maslen, especiall...

    Gabrielle Gardner Brighton

  • Had a great experience with the purchase of ou...

    jennifer Willson Brighton

  • Everyone at Maslen's were amazing, from Sam's...

    William Slingsby Brighton

  • Service exceeded my expectations overall at all stages of the process - I wouldn't hesitate to recommend you. Thanks. 

    Ms Greene Brighton

  • Very impressed with the efficient and friendly service, the staff were a pleasure to deal with. 

    Mr & Mrs Gill Brighton

  • The whole team were very committed from start to finish.

    Mr Pilgrim Brighton

  • You were amazingly helpful throughout - a real pillar of strength with a very difficult sale.

    Mrs Parkin Brighton

  • From start to finish the sale was dealt with in a thoroughly professional manner.  

    Mr Gibbs Brighton

  • All staff extremely helpful and polite. They made our move very smooth and less stressful.

    Mr & Mrs Gosling Woodingdean

  • A really good experience.

    Mr Tibble Brighton

  • Please thank Paul at Lewes Road - Excellent service. 

    Mr & Mrs Nuthall Brighton

  • You are the best estate agent I have ever dealt with and we will be recommending you to anyone moving!

    Hazel Young Hove

  • Good team. Straightforward. No nonsense.

    Mr Standing Brighton

  • The team worked very hard over a long period to ensure my sale went through - excellent service!

    Mr Patrick Brighton

  • Really pleased with the service and will definitely recommend to others.

    Ruth Kendall Brighton

  • Excellent Service from start to finish.

    Mr T Mole Hove

  • Sold within 2 weeks for asking price "excellent!"

    Mr Grundy Hove

  • Very thorough & very informative.

    Mr Michnowicz Brighton

  • All very professional, kept updated throughout. Very pleased - Would recommend. 

    Mrs Hammond Brighton

  • Estate agents generally have bad reputations b...

    Dan Harris Brighton

  • Maslen's were extremely helpful and profession...

    Bridget Allen Brighton

  • The team provided the best service I have ever received from an estate agent. I would not hesitate to recommend them to anyone.

    Nicki Myers Woodingdean

  • Quality advice about when and how to sell, which was spot on. Thank you.

    Miss Coleman Brighton

  • The staff were very helpful, an excellent service. I would recommend you to others.

    Miss Hockly Brighton

  • Thanks for an excellent service. 

    Mr King Brighton

  • First class service. Friendly and professional.

    Mr Thorne Brighton

  • Already recommended you! Thank you.

    Mr Edwards Brighton

  • Maslen's were amazing estate agents. Through,...

    Sarah Goodfellow Brighton

  • Excellent service as always

    Mr Field Brighton

  • Thank you for everything!

    Ms Tucker Brighton

  • Best Agents in Brighton.

    Mrs Field Brighton

  • An efficient, professional and friendly service. Helpful and a pleasure to do business with.

    Mr Beddington Brighton

  • Donna was our vendors sales progressor. We cou...

    Allan Da Silva Brighton

  • As always, an excellent service. 

    Mr & Mrs Field Brighton

  • Very comprehensive and professional. Nice people to work with and highly recommended. 

    Mr Alderton Brighton

  • Excellent communication and advice throughout. It felt very reassuring to be in good hands.

    Mrs Brooker Brighton

  • Thank you for your service, I would (and have) recommended you to my friends.

    Liz Dean Brighton

  • Superb service as usual, I would always recommend you.

    Ms S Hike Brighton

  • I found the service to be courteous, friendly and efficient.

    Mr Upton Brighton

  • Fantastic service. By far the best agents we have ever used, I cannot recommend you highly enough.

    Mr Field Brighton

  • I would recommend Maslen to anyone. 

    Mrs Tripp Brighton

  • All the staff were professional, cheerful and supportive throughout the long process.

    Mr R Turner Shoreham

  • Delighted with the service provided. Very professional and skilful.

    Nicky Conlan Hove

  • The sale was dealt with swiftly, professionally and successfully. Thank you Maslen!

    Mrs Lincoln Brighton

  • A very committed team who made the sale process very easy.

    Ms Rees Brighton

  • Very, very happy we chose you, felt right from the start! Thank you!

    Miss Blackadder Hove

  • Excellent customer service throughout. I will definitely recommend you, and use you again. Thank you.

    Ms Longley Brighton

  • Very happy with the service we got from you guys, everyone we dealt with was extremely friendly, professional and helpful. Thanks!

    Mr Brown Brighton

  • Maslen made the selling of my flat as easy as...

    Victoria Bradley-Barnard Brighton

  • It was an amazing experience, everyone involved were fantastic. 

    Mr & Mrs Knight Brighton

  • Your advice, support and understanding whilst dealing with the property were invaluable, making everything so easy.

    Janine Suttner Brighton

  • I was new to the area and viewed a lot of properties with a lot of different agents. Maslens were by far the best I came in contact with, so when i...

    Mr & Mrs Heer Brighton

  • From first valuation to completion day the Mas...

    Sam Brighton

  • I found everyone helpful, positive and courteous.

    Jean Wooldridge Evesham

  • Very polite, good communication, excellent service.

    Alicia Van der Sluis Surrey

  • Paul Wilkinson was extremely helpful and efficient. The only problem was the vendors solicitor and Paul warned me of this. A good transaction all r...

    Mr Lavender Brighton

  • Very pleased with the excellent service throughout. Professional, friendly, efficient and no hard sell. Achieved above asking price. Thank you!

    Mr Witten Brighton

  • In my situation, moving the sale of my home to Maslen Estate Agents really was a case of third time lucky!

    Lise Henderson Hove

  • Very pleased with the experience. I would definitely recommend you and use you again.

    Ms D Edmonds Brighton

  • Thank you. We found all the staff knowledgeable and really pleasant to deal with. 

    Ms Ansloos Brighton

  • A completely painless experience from start to finish. Thank you.

    Mr Woolven & Mrs Bessant-Woolven Brighton

  • Very helpful and patient team.

    Mrs Shea Brighton

  • I wish we had used you to sell our property! Nice to meet honest people, who are genuinely interested in helping. Very pleased.

    Mrs Porter Brighton

  • Several leagues above any other estate agent I have had contact with. Kept fully informed every step of the way.

    Paul Cade Haywards Heath

  • Thank you Maslens, you were all excellent!

    Miss Jasper Brighton

  • This was the best experience I’ve ever had of estate agents. Professional, calm and understanding.

    Elinor James Hove

  • I have bought and sold 7 properties, and this was the best experience of an estate agents services I have found.

    Mrs Shepherd Brighton

  • Best Estate Agents ever experienced - professional, approachable, competent and exemplary. 

    Mr & Mrs Guest Brighton

  • Compared to your rivals, your service was excellent

    Ms McGrigor Brighton

  • First class service from a first class team.

    Mr & Mrs English Brighton

  • Great service, always polite and friendly. Excellent contact and info all the way.

    Mr Wells Hove

  • The best estate agents we have ever used. Friendly, efficient and above all truthful! You are in danger of giving estate agents a good name!

    Jacquie Ellis-Jones Shoreham

  • All agents at Maslen were extremely helpful and polite from the beginning to the completion of sale. 

    Mr Johnson Brighton

  • Paul was absolutely brilliant. 

    Mrs Tasker Brighton

  • Donna was such a friendly and helpful support...

    Victoria Lander Brighton

  • These guys are the real deal, highly experienced, no nonsense, honest and by far and away the most reliable we have encountered. 

    Sarah Studd Hove

  • It was a long, drawn out process that the people at Maslen helped me through, without the impression that it was a chore. So extremely professional...

    Mr McLagan Brighton

See All »